Rare sur le secteur terrain 820 M² viabilisé
384 000 €Les terrains présentés par Domexpo ne sont pas la propriété des constructeurs. Ils sont proposés par ces derniers en collaboration avec leurs partenaires fonciers, selon disponibilité. Domexpo décline toute responsabilité quant à la diffusion de ces annonces
Joli terrain plat de 820 M², viabilisé vue sur les champs constructible au fond d’ une impasse.
Tous commerces sur la commune, accès RN 12 rapide, train (accès Montparnasse en 45 minutes), crèche, écoles, lycée, médecins…..
Contactez Sébastien Barrault 07-66-60-15-92
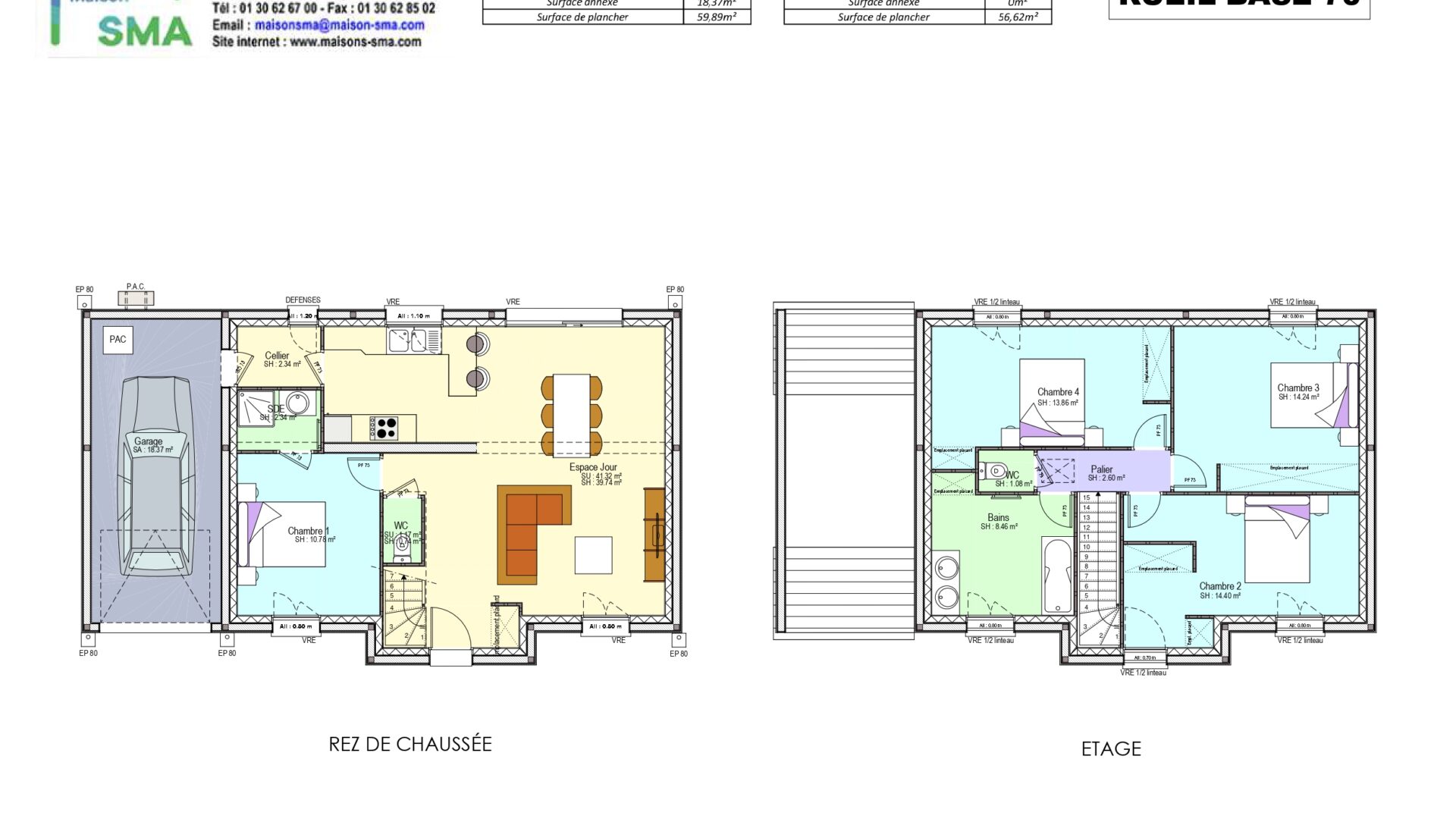
Charme, clarté… notre modèle RUEIL saura vous séduire avec ses grands volumes de vie savamment aménagés.
RUEIL, 110m2 de sobriété et modernité spécialement étudiés pour satisfaire au mieux votre demande.
Chaleureux, le rez-de-chaussée du modèle RUEIL s’ouvre sur un vaste séjour, pouvant accueillir à la fois un espace salle à manger et une partie salon. Sa grande baie vitrée en font une pièce très lumineuse vous offrant une vue imprenable sur le jardin.
Atouts supplémentaires, une vraie cuisine ouverte pour partager des moments de convivialité en famille, un cellier ainsi qu’un garage spacieux accolé à votre maison possible en option. Sans oublié une belle chambre au RDC équipée d’une salle d’eau privative.
Grâce à un escalier situé dans l’entrée, vous accédez à l’étage où se situe la partie nuit, totalement indépendante de la partie jour. La partie nuit s’articule autour de 3 grandes chambres ainsi qu’une grande salle de bain avec WC indépendant.